We speak English, French, PortugueseWe speak English, French, Portuguese

Available

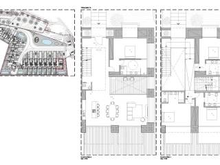
Property Brief

PropertiesProperties

Similar ListingsSimilar Listings

 
Loading...